Добрый Склад

Склад ответственного хранения
О нас
Мы - компания собственник земельного участка и комплекса зданий, расположенных в ближнем Подмосковье.
Предоставляем склады класса B+ под ответственное хранение и аренду.

Почему мы?
Наша цель - обеспечить хранение грузов на
высшем уровне с максимальным комфортом для вас
  • Участок находится в 12 км от МКАД по Ленинградскому шоссе. В 5 км от участка расположен международный аэропорт Шереметьево, а также в 100 м строится развязка с новой платной автомагистралью Москва-Санкт Петербург.
  • Территория

    Участок огорожен бетонным забором с колючей проволокой, оборудован системами видеонаблюдения, КПП. На территории имеется твердое покрытие. Удобные подъездные пути к складу, стоянка на 10 грузовых и 20 легковых машиномест.
  • Инженерная инфраструктура
    Территория оснащена электроснабжением до 800кВт от собственной трансформаторной подстанции, оптоволоконными кабелями связи. Также имеется теплоснабжение, водоснабжение и хозбытовая канализация.
  • Услуги

    Мы оказываем полный комплекс услуг по обработке грузов: разгрузка/погрузка, учет, паллетирование, партионный учет, работа с документооборотом и прочее.
Ответственное хранение

Мы предоставляем складские здания класса В+ под ответственное хранение.
Ознакомиться с тарифами можно в разделе Тарифы.


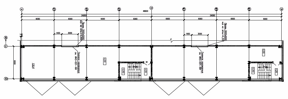
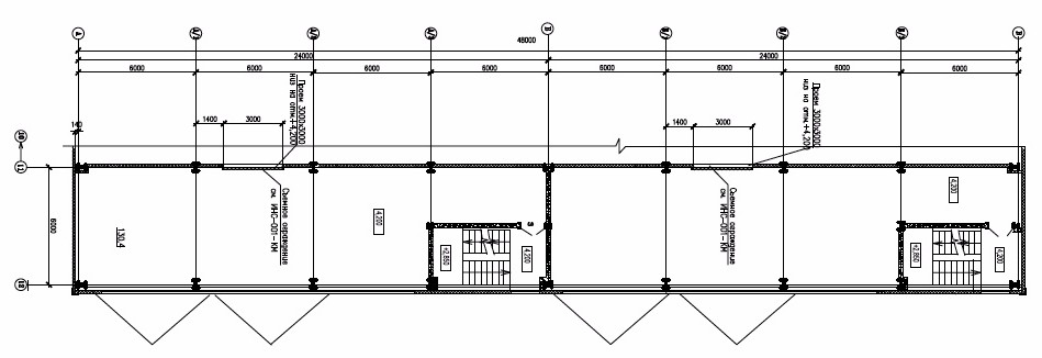
Склады класса B+ (до 6000 паллетомест).
Шаг колонн: 6*24. Рабочая высота от уровня чистого пола: от 10,6 м.
Полы с обеспыливающим покрытием.
Имеется специализированная тара для хранения тяжелых, трудно паллетируемых грузов. Есть возможность хранения на открытых площадках и обработки тяжелых и негабаритных грузов. Охраняемая территория, КПП, контроль доступа на территорию и на склад, видеонаблюдение. Удобные подъездные пути к складу, стоянка на 10 грузовых и 20 легковых машиномест.

  • Корпус 1
    2 дока, оборудованных тепловыми отсекателями, док-шелтерами, док-левеллерами и автоматическими секционными воротами. Имеются автоматические ворота на уровне земли. На складе установлены фронтальные стеллажи. 1500 паллетомест. Максимальный вес паллет в зоне хранения: напольное хранение – до 2000кг
    1,2,3 уровни хранения – до 1000кг
    4 уровнь хранения - до 800кг.
    Оснащен приточно-вытяжной системой вентиляции, системой пожаротушения. Подключена телефония и Интернет.

  • Корпус 2
    4 дока, оборудованных тепловыми отсекателями, док-шелтерами, док-левеллерами и автоматическими секционными воротами. Оснащен приточно-вытяжной системой вентиляции, системой пожаротушения.
    Подключена телефония и Интернет.



Дополнительные услуги
Мы предоставляем различные дополнительные
услуги в соответствии с вашими пожеланиями
  • Аренда помещений под офисы
  • Управление запасами
  • Обработка негабаритных грузов
  • Механизированная обработка грузов массой до 10 тонн
  • Поштучный/покоробочный подбор заказов
  • Маркировка/стикеровка
  • Паллетирование
  • Изготовление специальной тары для отправки груза
  • Кросс-докинг
  • Оформление отгрузочных и товарно-транспортных документов
  • Предоставление пустых поддонов
  • Погрузка/разгрузка
Тарифы
Все тарифы формируются индивидуально для каждого клиента
Ответственное хранение
От 18 руб.
за паллетоместо в сутки
Аренда офисных помещений
От 7000 руб.
за квадратный метр в год
Выгрузка/погрузка
От 150 руб.
за паллетоместо
Цены на прочие услуги обговариваются дополнительно
Режим работы
Понедельник-пятница
09:00-18:00
Суббота-воскресенье
выходной
Работа в праздничные и выходные дни обговаривается отдельно
Контакты
+7 (495) 150 03 33
info@dobrysklad.ru



Aдрес
141580, Россия, Московская Область, Солнечногорский р-н, д. Черная Грязь, ул. Ново-Ленинградская стр. 1

55°58′44″N, 37°18′42″E
(55.978897, 37.311656)

Cвязаться с нами
Задайте нам вопрос по электронной почте
ООО "Добрый склад"

© 2014-2022